📸 傳房間照片,我幫你看家具尺寸!
想做家具怕太擠?不確定深度、高度、動線? 你只要傳 1~3 張房間照片 給我,我會直接告訴你最剛好的做法。
怎麼拍最準?
- 拍「整面牆」:看得到地板+牆+窗戶
- 拍「房間角落」:看得到兩面牆交界
- 拍「目前家具」:方便看動線
- 不用整理、不用精準量,拍得到空間就可以
傳完後我會在 LINE 上回覆你建議(約 5~30 分鐘)
▍案子的開始
有一天,一位住在桃園的媽媽笑著對我說:「設計師,我家是雙胞胎男孩,國小三年級,每次寫作業都吵架!」
她想要一張能讓兄弟「一起用但不搶位子」的書桌。
這樣的需求,我太懂了——既要有互動,又要保留各自的小世界。

2坪設計 3坪設計 4坪設計 L型轉角櫃設計 兒童房設計 多功能設計 客廳展示櫃設計 客廳設計 展示櫃設計 床組設計 把手設計 按壓門設計 按手設計 書桌設計 櫃當牆設計 滑門設計 玄關設計 玻璃櫃設計 神明桌設計 臥室設計 衣櫃設計 轉角設計 隱形把手設計 雙面櫃設計 鞋櫃設計 餐邊櫃設計
每個設計背後,其實都有真實的家與生活。
這篇內容來自我們為客戶親手打造的實際案例,
不只是照片,而是一段空間被重新定義的故事。
👉 想看更多真實完工實景?請前往
Bonnyrun.com|真實案例專區
▍空間條件
這是間約 2.5 坪的兒童房。
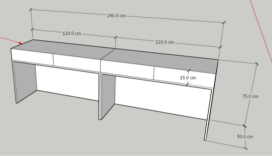
書桌要設在靠門那面牆,長度極限是 240cm,
旁邊還要留走道給他們輪流進出。
所以桌深我抓 50cm,既能放書、筆電,又不壓迫空間。
📌 小提醒: 小孩桌深超過 55cm 反而不好拿東西,會讓姿勢前傾。
▍設計概念:共桌但獨立

我最怕看到那種「兩個孩子共用一張成品桌」,結果中間一堆筆、書、橡皮擦混成戰場。
這次我設計的是「共桌但獨立區」,
設計把插座放在置中的位置,不封閉但能劃出界線。
他們可以並肩寫功課,也能彼此專注。
▍尺寸與結構
整張書桌是 240 × 50 × 75 cm,分成左右兩個 120cm 區。
每邊都有兩個抽屜,上層放文具,下層放作業本。
下方中間立板與兩側結構板形成三點支撐,
穩固度足以承受孩子長期使用與「亂靠桌面」的日常習慣。

▍抽屜與收納設計
每個孩子都有自己的兩個抽屜。
我故意讓抽屜深度不太深(約15cm),
避免他們把東西「埋」進去不見。
用分類的方式訓練整理,也是一種生活教育。
📌 小提醒: 給孩子的抽屜寬淺一些,他們更容易養成「放回原位」的習慣。
▍顏色選擇
屋主選「淺橡木紋+霧白」,
原因很簡單——這組色系更耐看,不會因孩子長大而顯得幼稚。
未來上國中、高中都能繼續用,甚至換張新椅子就能延續。
▍安全考量
這類兒童家具最重要的就是安全。
抽屜採用 緩衝滑軌,拉到底不會「啪」一聲。
整體結構穩固又柔和,符合兒童使用高度。
📘 延伸看:抽屜推不動怎麼辦?3 種滑軌解決法+維護技巧一次搞懂
▍現場細節
我特別讓插座位於桌背中央偏上,避免電線垂落妨礙活動。
兩張兒童椅並排後,距離仍保留約 50cm 的走道,方便家長協助或陪讀。
當施工完成、光線灑在桌面那一刻,我心裡想:
「這張桌子,不只是木頭拼成的家具,而是一個陪他們一起長大的角落。」
🧠 FAQ(8個常見問題)
工期多久?
約3週,依現場排程調整。
雙人桌會不會晃?
不會,三點支撐結構穩定度比單桌更高。
孩子長高還能用嗎?
可加裝升降腳墊或後期改造。
能做不同顏色嗎?
可以,木紋、粉白、灰白都常見。
抽屜能鎖嗎?
可加裝安全鎖或緩衝滑軌。
清潔容易嗎?
表面防潑水,濕布即可擦拭。
桌面能耐重嗎?
可承重約70公斤,放書、電腦無問題。
孩子搬家後能帶走嗎?
可拆裝式結構,方便移動。
▍設計師觀點
兒童家具設計,其實在教孩子「秩序」。
桌子的比例、抽屜的數量、空間的分配,
都是讓他們學會「這是我的範圍,我要負責整理」。
而這一切,從一張書桌開始。
▍誰適合這種書桌
- 雙胞胎或手足共用房間
- 想讓孩子培養整理與專注力的家長
- 希望家具「長大也能繼續用」的小家庭
👉 更多案例請見:Bonnyrun.com
▍更多小坪數家具影片
▍最後小總結
這張為雙胞胎設計的書桌,讓「一起」變成生活中最自然的節奏。
它不是華麗的裝飾,而是一個能陪伴孩子十年的空間夥伴。
設計的價值,不只是外觀,而是讓使用者——尤其是孩子——
從小學會整理、分享、與專注。
這,就是我最喜歡的設計任務之一。
🏡 這是一個真實的 Bonnyrun 客製案例
每個設計背後都有真實的家與故事。
這篇內容來自 Bonnyrun 團隊親手打造的完工作品。
想看更多實際案例與設計靈感?歡迎瀏覽:
延伸參考 —提升居家設計靈感
- The Spruce – 17 DIY Loft Bed Ideas…小房間最有效利用空間的創意設計:展現更多 DIY 或創意設計應用,像是工作區、走入式衣櫃等 亞馬遜+12The Spruce+12Pinterest+12。
- Homes & Gardens – 12 clever small bedroom layout ideas:提出布局、浮動傢俱、隱藏梳妝台、Loft 床的應用策略 Homes and Gardens+1。
- Architectural Digest – 10 Loft Bed Ideas for Small Spaces:提供多風格設計靈感,例如浮床、辦公區、衣櫥 Loft 和低層 Loft 等 Architectural Digest。




